9 Mercedes Place Burnie
5 of 9 images. We have reviews of the best places to see in burnie.
9 Mercedes Place Romaine Tas 7320 Realestate Com Au
Von wright one agency burnie.
9 mercedes place burnie. 1 mercedes place romaine. 7 of 9 images. The open plan main living area has been decorated in modern tones and has.
Explore this street what is an estimated value. 4 of 9 images. See 2 photos and 2 tips from 23 visitors to mercedes place.
Amazing dominican hair salon. 6 of 9 images. 9 mercedes place romaine tas 7320.
17 mercedes place burnie tas 7320. 9 mercedes place romaine tas 7320 is currently listed for sale with a price of 295000. See 1509 traveller reviews and photos of burnie tourist attractions.
Book your tickets online for the top things to do in burnie tasmania on tripadvisor. 2 of 9 images. An estimated value is a computer generated price calculated and supplied monthly by hometrack.
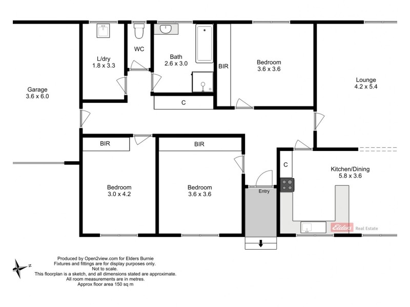
View property details and sold price of 17 mercedes place other properties in burnie tas 7320. Find what to do today this weekend or in november. 9 mercedes place is a house with 3 bedrooms 1 bathroom and 1 parking space.
Browse properties and real estate for sale in romaine tas 7320. Research homes neighbouring 4 mercedes place. 3 beds 1 bath 1 parking 709m2.
Flooded in sun this easy care brick home is perfect for those that want an easy care property in a great location surrounded by quality homes. 3 of 9 images. 9 of 9 images.
Level blocks in burnie are scarce as hens teeth and makes this property a stand out from others in the price range. Upon entry via the ground floor be impressed by an array of features that. 2 beds 1 bath parking 229m2.
Visit top rated must see attractions. 1 of 9 images. 1 mercedes place 2 mercedes place 3 mercedes place 5 mercedes place 6 mercedes place see all the homes on mercedes place romaine tas 7320.
Situated in popular upper burnie and adjacent to both romaine primary and parklands high is this contemporary styled three bedroom homebrbrthe home boasts two bedrooms in the main house and a third bedroom with ensuite over the single car garage perfect for a studio or a semi detached room for an older child. Modern four bedroom executive home sold for 522000. 9 mercedes place romaine.
8 of 9 images.
Leased House 9 Mercedes Place Romaine Tas 7320 Aug 13 2016 Homely
9 Mercedes Place Romaine Tas 7320 Domain
9 Mercedes Place Romaine Tas 7320 Elders Real Estate Burnie For Sale
9 Mercedes Place Romaine Tas 7320 Domain
9 Mercedes Place Bundall Qld 4217 Realestate Com Au
Leased House 9 Mercedes Place Romaine Tas 7320 Aug 13 2016 Homely
12 Mercedes Place Romaine Tas 7320 Realestate Com Au
9 Mercedes Place Romaine Tas 7320 Property Price Prediction Realas
1 Mercedes Place Romaine Tas 7320 Property Details
9 Mercedes Place Bellerive Tas 7018 Sold Prices And Statistics
Real Estate For Sale In Romaine Tas 7320 Allhomes
9 Mercedes Place Romaine Tas 7320 Property Price Prediction Realas
224 Real Estate Properties For Sale In Romaine Tas 7320 Domain
Houses For Sale In Romaine Tas 7320 Realestate Com Au
8 Cedar Place Romaine Tas 7320 Sale Rental History Price Estimator
9 Mercedes Place Romaine Tas 7320 Property Price Prediction Realas
Real Estate For Sale In Romaine Tas 7320 Allhomes
9 Mercedes Place Romaine Tas 7320 House For Sale Realestate Com Au
196 Wilson Street South Burnie Tas 7320 Sold Mar 2015
Real Estate For Sale In Romaine Tas 7320 Allhomes
15 Simon Court Romaine Tas 7320 Elders Real Estate Burnie Sold
Houses For Sale In Upper Burnie Tas 7320 Pg 2 Realestate Com Au
Real Estate For Sale In Brooklyn Tas 7320 Oct 2020
9 Mercedes Place Romaine Tas 7320 Property Price Prediction Realas
Used 1997 Mercedes Benz S Class S 320 For Sale In Glen Burnie Md Wdbga32g3va330335
Romaine Tas 7320 Property For Sale Page 1 Property Com Au
2017 Mercedes Benz Sl 450 Pasadena Maryland Area Volkswagen Dealer Near Baltimore Maryland New And Used Volkswagen Dealership Glen Burnie Annapolis Laurel Maryland
Glen Burnie Directions To Koons Mercedes Benz Of Catonsville
Used 2016 Mercedes Benz Gl Class Amg Gl 63 For Sale In Glen Burnie Md 4jgdf7ee2ga652373
9 Mercedes Place Romaine Tas 7320 Property Price Prediction Realas
2013 Mercedes Benz C 300 Sport Baltimore Md Columbia Annapolis Glen Burnie Maryland Wddgf8ab9da785149
Real Estate For Sale In Romaine Tas 7320 Allhomes
196 Wilson Street South Burnie Tas 7320 Sold Mar 2015
9 Mercedes Place Romaine Tas 7320 House For Sale Realestate Com Au
The Jewel Of Burnie Long Lease To Asx Listed Tenant Burgess Rawson
Sold House 4 Atkins Drive Romaine Tas 7320 Mar 17 2020 Homely
9 Mercedes Place Bellerive Tas 7018 Sold Prices And Statistics
2013 Mercedes Benz C 300 Sport Baltimore Md Columbia Annapolis Glen Burnie Maryland Wddgf8ab9da785149
2017 Mercedes Benz Sl 450 Pasadena Maryland Area Volkswagen Dealer Near Baltimore Maryland New And Used Volkswagen Dealership Glen Burnie Annapolis Laurel Maryland
Used 2019 Mercedes Benz A Class A 220 Wdd3g4eb5kw030756 Auto Com
File Mercedes Benz Gl320 Cdi 13273846785 Jpg Wikimedia Commons
15 Simon Court Romaine Tas 7320 Elders Real Estate Burnie Sold
9 Mercedes Place Romaine Tas 7320 Property Price Prediction Realas
122 Houses For Sale In Romaine Tas 7320 Domain
Residential Properties For Sale Elders Real Estate Burnie
Used 2019 Mercedes Benz A Class A 220 Wdd3g4eb5kw030756 Auto Com
Residential Properties For Sale Elders Real Estate Burnie
Real Estate For Sale In Romaine Tas 7320 Allhomes
Used 1997 Mercedes Benz S Class S 320 For Sale In Glen Burnie Md Wdbga32g3va330335
Houses For Sale In Havenview Tas 7320 Realestate Com Au
9 Mercedes Place Romaine Tas 7320 House For Sale Homely
2014 Mercedes Benz E 350 4matic Mercedes Benz Dealer In Jessup Md Used Mercedes Benz Dealership Serving Ellicott City Baltimore Glen Burnie Washington Dc Md
196 Wilson Street South Burnie Tas 7320 Sold Mar 2015
122 Houses For Sale In Romaine Tas 7320 Domain
2017 Mercedes Benz Sl 450 Pasadena Maryland Area Volkswagen Dealer Near Baltimore Maryland New And Used Volkswagen Dealership Glen Burnie Annapolis Laurel Maryland
2014 Mercedes Benz Glk 350 4matic Mercedes Benz Dealer In Jessup Md Used Mercedes Benz Dealership Serving Ellicott City Baltimore Glen Burnie Washington Dc Md
Residential Properties For Sale Elders Real Estate Burnie
9 Mercedes Place Bellerive Tas 7018 Sold Prices And Statistics
Real Estate For Sale In Romaine Tas 7320 Allhomes
Used Mercedes Benz For Sale In Glen Burnie Md Truecar
2007 Mercedes Benz Ml 350 4matic Clarksville Md Bethesda Rockville Glen Burnie Maryland 4jgbb86e07a197627
Sydney Pub Staffer Positive To Coronavirus The Advocate Burnie Tas
Used Mercedes Benz E Class For Sale In Hyattsville Md Edmunds
New Mercedes Benz C Class For Sale In Baltimore At Koons Mercedes Benz Of Catonsville
Used 2010 Mercedes Benz C Class C 300 For Sale In Glen Burnie Md Wddgf8bb7af469455
Used Mercedes Benz Inventory J B A Chevrolet
Sold House 4 Atkins Drive Romaine Tas 7320 Mar 17 2020 Homely
1 12 Josie Crescent Romaine Tas 7320 Sale Rental History Price Estimator
9 Mercedes Place Bellerive Tas 7018 Sold Prices And Statistics
2017 Mercedes Benz C 300 4matic Clarksville Md Bethesda Rockville Glen Burnie Maryland Wddwf4kb3hr279987
2017 Mercedes Benz C63 W205 Amg S Sedan 4dr Speedshift Mct 7sp 4 0tt Jan
Residential Properties For Sale Elders Real Estate Burnie
Mercedes Benz For Sale In Burnie Devonport Region Tas Gumtree Cars
Mercedes Benz 722 9 Tcm Memory Clearer Programer
2017 Mercedes Benz Sl 450 Pasadena Maryland Area Volkswagen Dealer Near Baltimore Maryland New And Used Volkswagen Dealership Glen Burnie Annapolis Laurel Maryland
Property Real Estate For Sale In Stowport Tasmania Homesales Com Au
Used Mercedes Benz Glc Class Coupe For Sale In Baltimore Md Edmunds
Used 2016 Mercedes Benz Gl Class Amg Gl 63 For Sale In Glen Burnie Md 4jgdf7ee2ga652373
Https Encrypted Tbn0 Gstatic Com Images Q Tbn 3aand9gcqxhbrgmpanmfue442ydn52tcdg1swjb6kztg Usqp Cau
New Mercedes Benz Gla For Sale In Baltimore At Koons Mercedes Benz Of Catonsville
Autos Unlimited 9 23 19 By Autos Unlimited Issuu
Sold House 4 Atkins Drive Romaine Tas 7320 Mar 17 2020 Homely
Used Mercedes Benz C Class For Sale In Red Lion Pa Truecar
Mercedes Benz 722 9 Transfer Case Chain Hv 091
Houses For Sale In Shorewell Park Tas 7320 Realestate Com Au
Used Mercedes Benz Gls For Sale With Photos U S News World Report
15 Simon Court Romaine Tas 7320 Elders Real Estate Burnie Sold
Romaine Tas 7320 Property For Sale Page 1 Property Com Au
2015 Mazda6 I Touring Baltimore Md Columbia Annapolis Glen Burnie Maryland Jm1gj1v51f1205562
Property Report For 31 Mercedes Place Romaine Tas 7320
196 Wilson Street South Burnie Tas 7320 Sold Mar 2015
Find 2016 Mercedes For Sale In Waldorf Md



Komentar
Posting Komentar